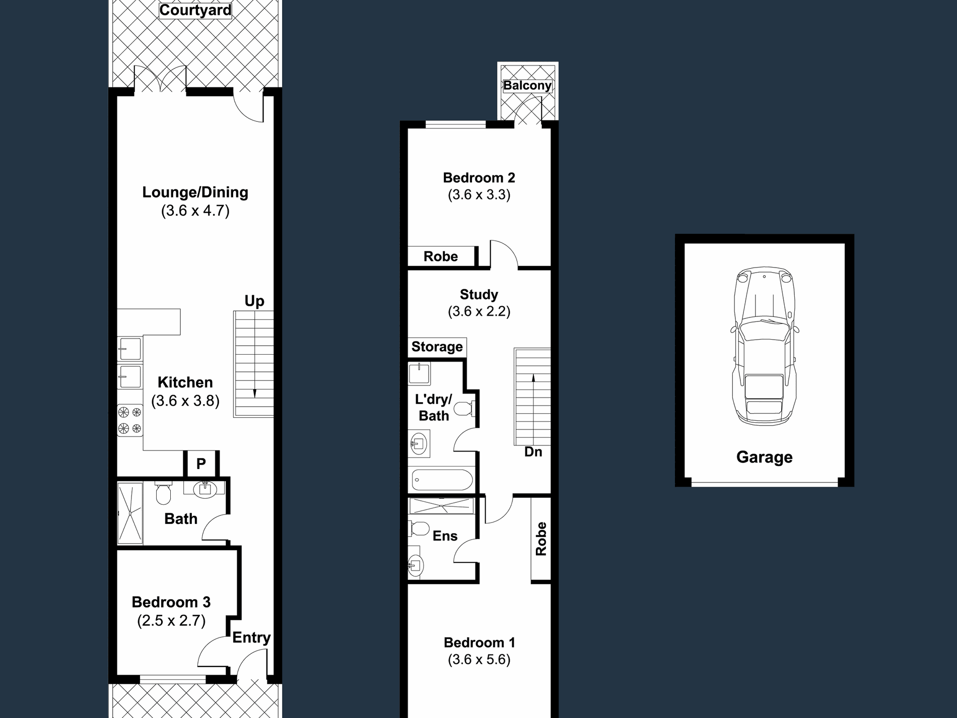
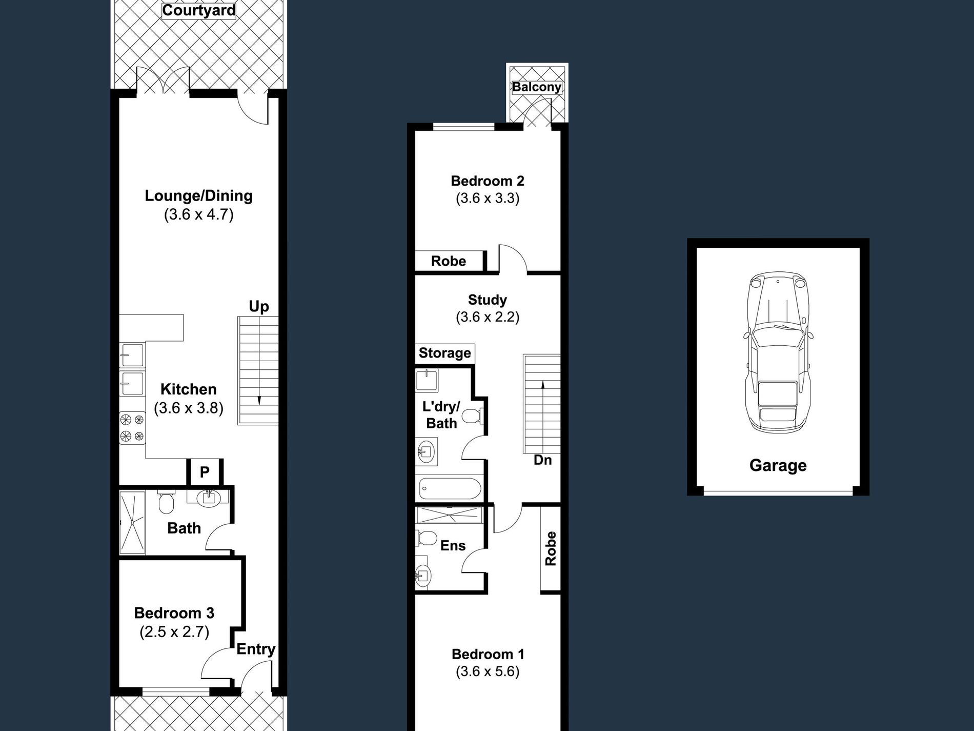
Step inside this 3 bedroom plus study townhouse style apartment. Displaying a fresh modern feel that takes full advantage of the space, this stylish dual-level apartment offers a superb home or investment that's highly private, exceptionally secure and centrally located for lifestyle. It combines bright airy interiors and sleek contemporary finishes to deliver an excellent low-maintenance home.
Generous open living space and 2 private outdoor courtyards
Master bedroom with ensuite and built-in
Study or library on the second level
Gas kitchen plus bathroom with internal laundry
Security building and secure lock up garage
Central located just 400m to West Ryde station and shopping centre
Internal size 126sqm; Total size 143sqm
Outgoings:
Water Rates: $111 p/quarter
Council Rates: $349 p/quarter
Strata Levies: $1,294 p/quarter
Further information contact us
Green Real Estate Agency
Phone 9807 8899 (24 Hours - 7 Days a Week)

























